CISE Big 704 525z CISE PHOTOS9 Big 704 525z CISE PHOTOS5 Big 704 525z CISE PHOTOS10 IMG 5300 retouchée Big 704 525z CISE PHOTOS11 Big 704 525z CISE PHOTOS3 Big 704 525z CISE PHOTOS4 Big 704 525z CISE PHOTOS7 Big 704 525z CISE PHOTOS8 Big 704 525z CISE PHOTOS Big 704 525z CISE REZ Big 704 525z CISE COUPE FACADE O Big 704 525z CISE FACADES N E

Agrandissement du Collège Henri-Dès (2 salles de classe, salle des maîtres et local d'accueil)

CONCISE / VD

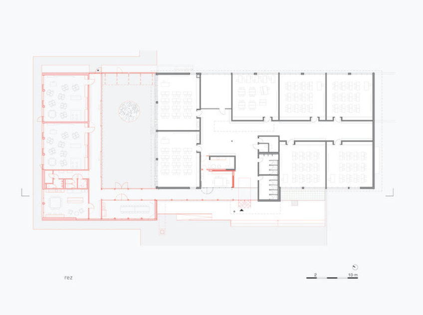
L’agrandissement du Col­lège Hen­ri-Dès à Con­cise est dévelop­pé dans le pro­longe­ment direct de l’école exis­tante, sur 1 niveau et autour d’un patio. L’espace extérieur ain­si défi­ni offre un 2ème préau pro­tégé – en par­tie cou­vert – et ain­si plus directe­ment des­tiné à l’accueil des petits.

Les plus grands — y c. l’accueil des nou­velles class­es de 5 et 6ème Har­mos — pren­drons place dans la par­tie exis­tante du Col­lège. Tan­dis que le préau (en par­tie cou­vert) – devant l’école – officiera tou­jours en tant que tel.

L’entrée com­mune — avancée par rap­port à l’existante — est dévelop­pée de manière ouverte, afin de lier les par­ties. Le cor­ri­dor de dis­tri­b­u­tion — menant aux nou­velles salles — se déploie le long du patio et dis­tribue :
1x local d’accueil
1x salle des maîtres
2x salles de classe
et leurs san­i­taires dédiés

Les locaux sont ori­en­tés sur l’extérieur pour prof­iter du cadre naturel environnant.

Dans la par­tie exis­tante, l’intervention prin­ci­pale sépare la salle exis­tante des maîtres pour l’aménagement d’un espace de bureaux (doyen, infir­mière et PPLS (Psy­cho­logues, Psy­chomotriciens et Logopédistes en milieu Sco­laire)) et d’une infirmerie.

De larges baies vit­rées répon­dent aux besoins en éclairage naturel des salles, ani­ment le par­cours et offrent un accès facil­ité au patio.

Un bardage bois ver­ti­cal, une répar­ti­tion sys­té­ma­tique des vit­rages et des claus­tras par­ticipent à l’expression de la façade. Des choix égale­ment mis en place pour assur­er le con­fort intérieur (ven­ti­la­tion naturelle, pro­tec­tion solaire et rafraîchissement).

Pho­togra­phies (+vue 3D) : Thibaud Zingg

  • Ouvrage : exten­sion scolaire
  • Site : zone d’u­til­ité publique
  • MO : Com­mune de Concise
  • Année de réalisation : 2020 – 2021
  • SBP : 450 m²
  • Matériau : sys­tème por­teur bois, façades bardage bois, toi­ture végétalisée
  • Particularités : agran­disse­ment essen­tielle­ment dévelop­pé en bois (sen­si­bil­ité et rapid­ité exécutive)