Facade Avec Marquise  I Vue Densemble 2  I Facade Acces  I Entree Principale  Detail  I Rdc  I Coupe  I 2 Facades 2  I Entree De Service  Detail  I Noyaux De Service  I Atelier 1  I Atelier 2  I Facade Cote Terrasse  I Terrasse Cafeteria  I Cafeteria  I Vue Du Batiment Sur Les 2 Entrees 2

Atelier protégé à vocation industrielle

Yverdon-les-Bains / VD

Le nou­v­el ate­lier pro­tégé à voca­tion indus­trielle de l’association AFIRO s’implante dans la zone indus­trielle des Champs Lovats à Yver­don-les-Bains. L’association, qui a comme but la réadap­ta­tion pro­fes­sion­nelle et la créa­tion d’emplois adap­tés en faveur de per­son­nes en sit­u­a­tion de hand­i­cap, y installe 27 places de tra­vail pro­tégées dans le domaine de la menuis­erie et des textiles.

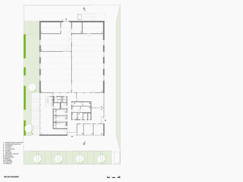
Afin de faciliter la chaîne de pro­duc­tion (arrivage des matières pre­mières — con­fec­tion pièces et assem­blage — fini­tion — expédi­tion) et l’encadrement des tra­vailleurs par les maîtres socio-pro­fes­sion­nels, le bâti­ment est conçu sur un seul niveau, de plain pied avec ses sur­faces extérieurs. Il com­prend une par­tie ate­liers de pro­duc­tion et une par­tie admin­is­tra­tion — ser­vices — cafétéria.

Les ate­liers de pro­duc­tion sont con­stru­its sur une struc­ture BLC de grande portée, mod­u­laire avec cloi­son­nement flex­i­ble en vue d’éventuels change­ments dans le mode de pro­duc­tion. Une hau­teur généreuse d’étage dans ce secteur per­met de garan­tir un éclairage naturel suff­isant sur les tables de tra­vail située plus au coeur du vol­ume. Les matéri­aux de con­struc­tion y sont à leur état brut et tous les réseaux et équipements CVSE sus­pendus en appar­ent sous le pla­fond, pour né pas encom­br­er le sol et les parois. Des équipements mod­ernes d’aspiration des pous­sières de bois et d’aspiration des brouil­lards de pein­ture garan­tis­sent sécu­rité et hygiène de travail.

Les bureaux, ser­vices et cafétéria occu­pent l’autre par­tie du bâti­ment, organ­isée autour de deux noy­aux en béton appar­ents de couleur — ceux-ci font office de con­treven­te­ment de l’ensemble de la construction.

Le bâti­ment est habil­lé d’un revête­ment en sapin indigène, rap­pelant sa fonc­tion prin­ci­pale de menuis­erie, pro­tégé par une lasure grise. Les lames de façade sont déclinées en bardage opaque et en clair-voies devant les grandes sur­faces vit­rées; celles-ci fil­trent la lumière haute dans les grandes halles et intimisent la rela­tion à l’extérieur dans les bureaux.

L’association a elle-même par­ticipé à la con­struc­tion de son bâti­ment, ses employés se sont chargés de la fab­ri­ca­tion de divers élé­ments de menuis­erie intérieure.

Pho­togra­phies: Thibaud Zingg

  • Ouvrage : halle indus­trielle
  • Site : zone indus­trielle
  • MO : AFIRO (asso­ci­a­tion pour la for­ma­tion ini­tiale, la réadap­ta­tion et l’occupation)
  • Année de réalisation : 2012
  • SBP : 1053 m2
  • Matériau : struc­ture de grande portée en BLC, bardage extérieur en bois lasuré gris