Nouvel Essai 8  I Entree  I Plans  I Coupe 2  I Facade 2  I Reception 2  I Salle De Conference 2  I Detail De Balustrade 2  I Detail Toiture 2  I Facade Amont 2  I

Centre administratif en gestion d'essais cliniques

NYON / VD

UN NOU­VEAU COEUR
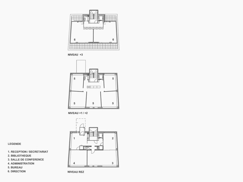
Le regroupe­ment de la société Socar Research SA — Organ­i­sa­tion et ges­tion d’études et d’essais clin­iques car­dio-vas­cu­laires — dans un seul bâti­ment représen­tatif d’une capac­ité de 25 à 30 places de tra­vail avec ser­vices annex­es et parking.

LEG­ERETE ET LUMIERE
La façade — d’une con­struc­tion en béton à fenêtre, nous optons pour un revête­ment à pan­neaux d’aluminium avec ban­deaux vit­rés périphériques. L’escalier — une inter­ven­tion d’allégement prin­ci­pale: nous rem­plaçons les volées en béton par une con­struc­tion en métal et verre pour les march­es avec une façade entière­ment trans­par­ente. L’étage attique — des exten­sions latérales avec cou­ver­ture en brise-soleil, tel un fil­tre de lumière. Finale­ment, les choix d’aménagement intérieur — pan­neaux vit­rés coulis­sants, portes vit­rées, halls ouverts et sols blan­chis en transparence.

LA DOMO­TIQUE COMME SYS­TEME NERVEUX
Per­for­mance et sou­p­lesse d’utilisation sont assurées par un canal d’allège en périphérie sous forme d’un bac gril­lagé amovi­ble, qui inclut toutes les ali­men­ta­tions, les pris­es élec­triques et les réseaux informatiques.

POUR UNE ESTHE­TIQUE
- Unité de l’enveloppe extérieure: façades en alu­mini­um et verre
- Unité des matières intérieures: sols — parois — pla­fonds
- Unité des couleurs: le bleu dom­i­nant sur fonds gris-blanc

Pho­togra­phies: Thibaud Zingg

  • Ouvrage : bâti­ment administratif
  • Site : zone mixte: indus­trielle et de logements
  • MO : Socar Research SA — Organ­i­sa­tion et ges­tion d’é­tudes et d’es­sais clin­iques cardio-vasculaires
  • Année de réalisation : 1999
  • SBP : 1070 m2
  • Matériau : béton, métal, verre et alu­mini­um; dom­i­nance de blanc, gris et bleu dans les couleurs