Asij M 2 Asij M2 Asij M3 Asij M4 Asij M5 Asij M6 Asij M7 Asij M8 Asij M9 Asijm  2 Situation Asijm  3 Plan Rez Sup Asijm  4 Plans Etage Et Rez Inf Asijm  5 Coupes Et Facade

Extension du collège du Raffort

MEZIERES / VD

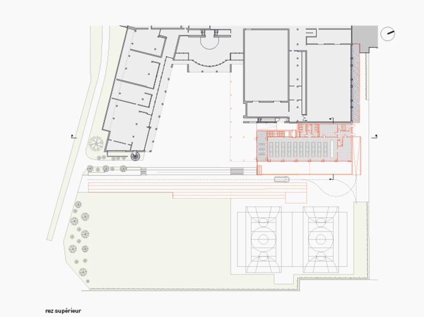
L’extension du col­lège du Raf­fort se com­pose de 5 salles de classe, d’un réfec­toire et d’une bibliothèque.

Le pro­jet se situe en bor­dure de la cour prin­ci­pale de l’école et se déploye sur le devant des salles de gym exis­tantes. Les espaces don­nent la vision sur les ter­rains de sport et de ver­dure. Le pro­gramme s’articule sur 3 étages, une par­tie sur­plom­bant la cour et per­me­t­tant d’augmenter la sur­face de préau couvert.

Les salles de class­es se trou­vent au 1er étage et un espace de pause relie l’extension au bâti­ment exis­tant. Le réfec­toire prend place de plain-pied et est ain­si directe­ment acces­si­ble depuis la cour prin­ci­pale. Tan­dis que la bib­lio­thèque s’organise dans un niveau inférieur, pour lequel un patio amé­nagé d’une ter­rasse et de gradins est créé.

Un pro­gramme mis en place pour répon­dre à l’horaire con­tinu, nou­velle­ment intro­duit dans le can­ton et aux struc­tures de regroupe­ment liées (réfec­toire + salles de classe supplémentaires).

Pho­togra­phies : Thibaud Zingg

  • Ouvrage : agran­disse­ment com­plexe sco­laire sec­ondaire de 5 salles de classe
  • Site : zone de con­struc­tion d’utilité publique
  • MO : Asso­ci­a­tion Sco­laire Inter­com­mu­nale du Jorat (ASIJ)
  • Année de réalisation : 2015 – 2016
  • SBP : 1700 m²
  • Matériau : struc­ture en béton armé, murs intérieurs en par­tie en béton brut et revête­ment de sol en par­quet (salles de classe et bibliothèque)
  • Particularités : réal­i­sa­tion d’un large porte-à-faux à l’étage (pour une capac­ité sup­plé­men­taire de salle de classe + créa­tion d’une zone cou­verte pour le patio)