Plan De Situation I Dsc 0675 I 2 Dsc 0677 I Hall Dentree I Plan De Letage I Coupe Longitudinale I Salle De Rythmique I Dsc 0666 2 I Dsc 0669 I Dsc 0674 I

Pavillon scolaire de quartier et installations sportives

Chavornay / VD

Sis sur une par­celle de géométrie résidu­elle, le bâti­ment sco­laire occupe le cœur d’un quarti­er d’habitations de par sa sit­u­a­tion de cen­tral­ité. Il pro­pose en sur­plus un lieu de ren­con­tre et de regroupe­ment.
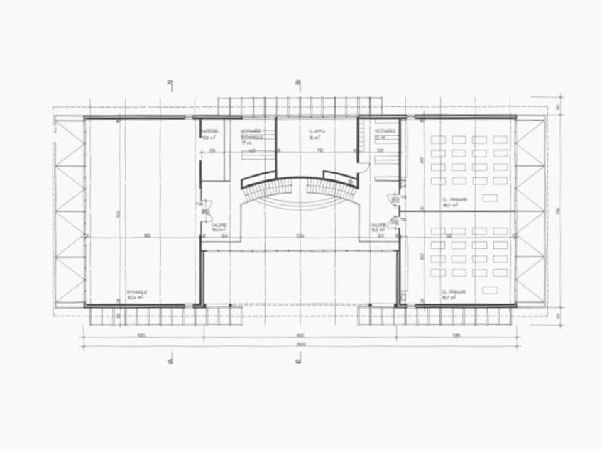
La con­struc­tion peut accueil­lir 140 élèves répar­tis en 6 class­es enfan­tines et pri­maires. Elle abrite égale­ment une salle de ryth­mique et des aires de sport extérieures.

L’architecture du bâti­ment est d’inspiration indus­trielle : lignes sobres, vol­ume sim­ple, unité de façade, choix des matéri­aux : béton, métal, bois et verre. Témoin du sys­tème struc­turel, les larges débor­de­ments latéraux de la toi­ture s’appuient sur une struc­ture de pro­filés métalliques per­me­t­tant l’installation des stores solaires décalés de la façade. Le plan intérieur appliqué des inten­tions de rigueur et de sobriété.
Le porche d’entrée et préau d’accueil se pro­longe à l’intérieur par un hall cen­tral sur dou­ble hau­teur dis­tribuant les espaces des 2 niveaux. Sim­ple, lumineux, c’est le lieu de toutes les con­ver­gences de l’utilisation de ce bâti­ment scolaire.

Pho­togra­phies: Ch. Lehmann (pho­tos pp.4 et 7); Thibaud Zingg (autres)

  • Ouvrage : bâti­ment sco­laire de quarti­er et instal­la­tions sportives
  • Site : quarti­er d’immeubles d’habitations
  • MO : com­mune de Chavornay
  • Année de réalisation : 1992
  • SBP : 1010 m2
  • Matériau : béton, métal, bois et verre
  • Particularités : struc­ture prin­ci­pale à portée unique, dévelop­pée sous la forme de poutres BLC sous tendues